Działka budowlana z budynkiem – stan surowy otwarty Gumna, ul. Beskidzka.

M-3 z wyposażeniem wolne od zaraz – ul. Dworcowa, Zebrzydowice.
20 sierpnia 2025
Działki budowlane na sprzedaż lokalizacja Kończyce Wielkie, ul. Miła
1 października 2025

499 000,00 

 

Gumna, ul.Beskidzka
Cena 499 000 zł
Powierzchnia 698 m2


Kategorie: ,

OFERTA NA WYŁĄCZNOŚĆ


Na sprzedaż działka budowlana o powierzchni 698 m2., zabudowana budynkiem w stanie surowym otwartym wraz z przynależnym udziałem w drodze, położona w Gumnach. Ostatnia wolna parcela na bardzo spokojnym i urokliwym osiedlu domów jednorodzinnych z widokiem na piękną panoramę Beskidów, przy ulicy Beskidzkiej.


Dojazd do osiedla drogą gminną asfaltową, natomiast bezpośredni dojazd do oferowanej działki stanowi droga wewnętrzna (która na większej  części jest utwardzona kamieniem, natomiast przed samym  wjazdem do budynku będącego obiektem sprzedaży  jest wykonana nawierzchnia z kostki brukowej).

Działka posiada kształt prostokąta , teren dobrze nasłoneczniony, z widokiem na Beskidy.

Wymiary:

  • boki ok. 33 mb,
  • dolna granica działki ok.21 mb.,

Aktywne pozwolenie na budowę wydane w 2016 roku (stare warunki), dziennik budowy z aktualnymi wpisami (w projekcie ogrzewanie gazowe, konieczność wystąpienia o aktualizację projektu wewnętrznej instalacji gazowej oraz wykonanie projektu przyłącza kanalizacji – pozwolenie było wydane na budowę szamba). Ściany nośne wzniesione z pustka ceramicznego gr.25 cm, docieplone styropianem i zaciągnięte siatką oraz klejem, wykonana więźba wraz z położeniem dachówki betonowej i zamontowaniem okien dachowych. Wykonane podejścia wod.-kan. w łazienkach.

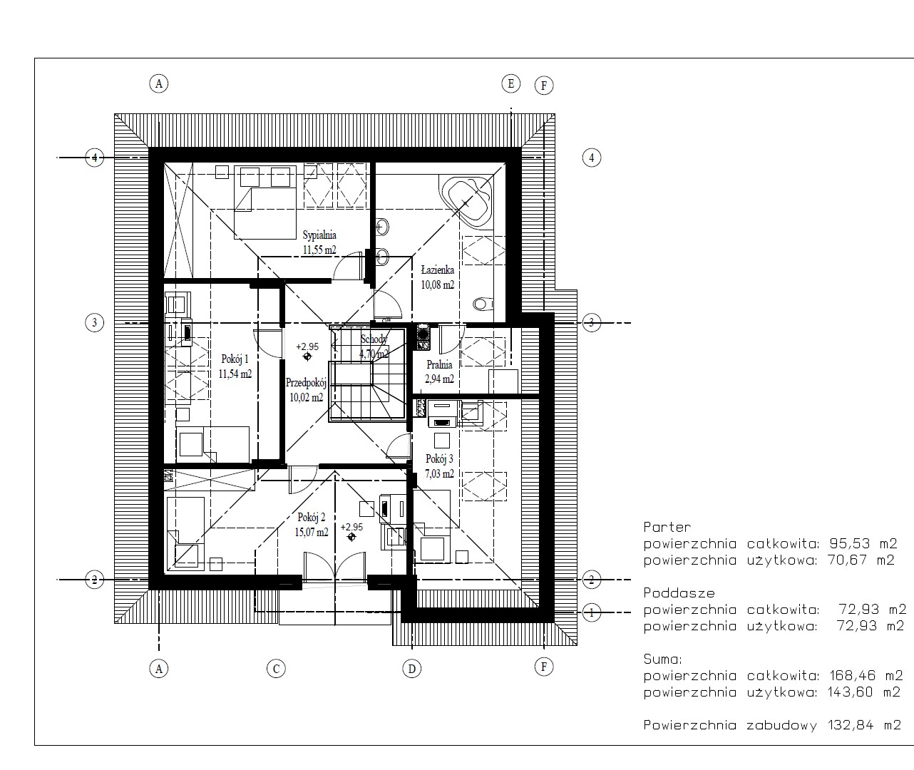
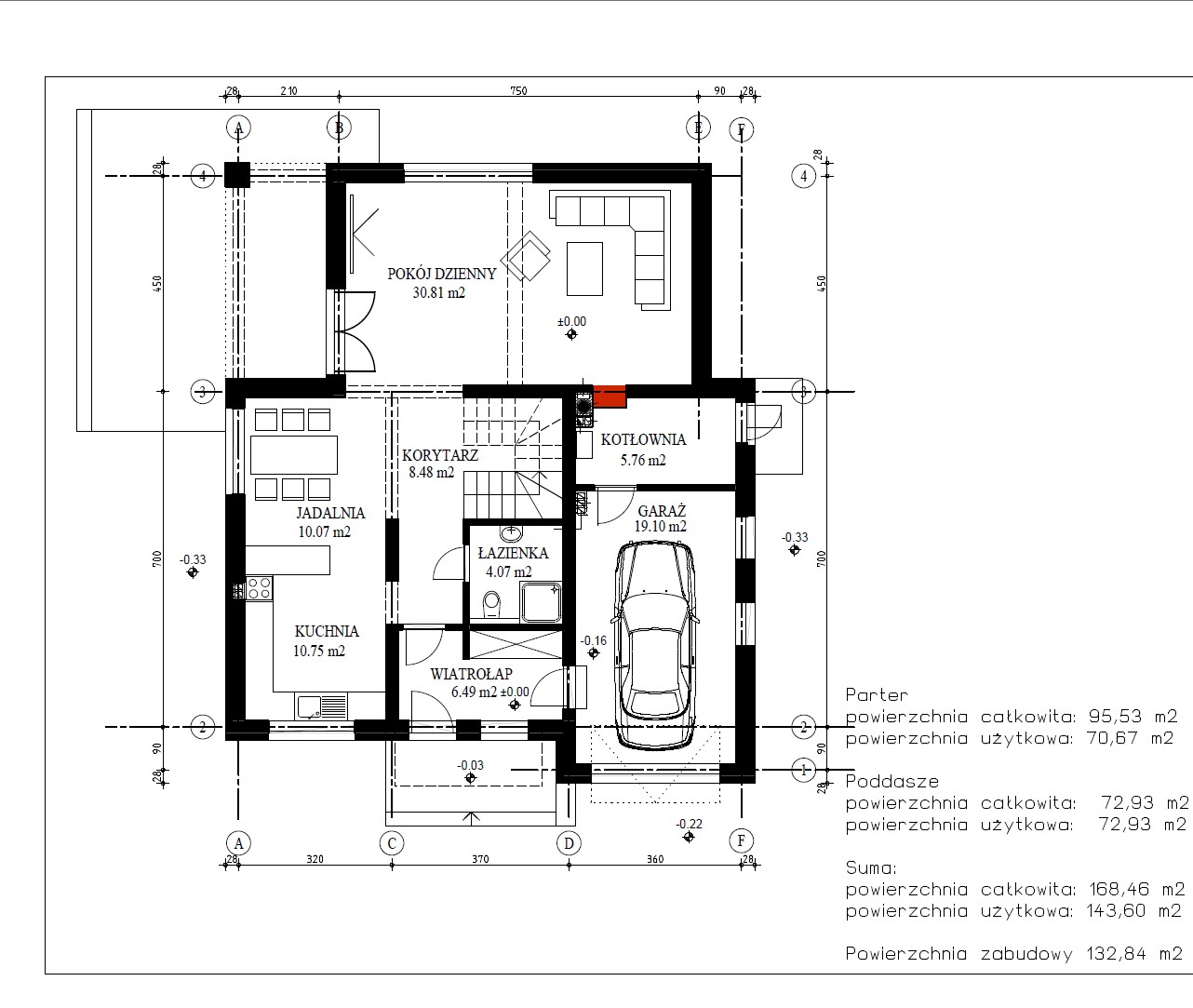
Budynek dwukondygnacyjny, składający się z parteru, poddasza oraz nieużytkowego stryszku. Dodatkowo w bryle budynku został zaprojektowany jednostanowiskowy  garaż. Powierzchnia całkowita budynku 168,46 m2 użytkowa budynku to ok. 143,6 m2.


Intuicyjny i funkcjonalny rozkład pomieszczeń, składający się z :

Parter:

  • kuchnia połączona z jadalnią,
  • salon z wykonanym podejściem pod kominek typu “koza”,
  • łazienka z wykonanymi podejściami pod prysznic oraz umywalkę,
  • garaż jednostanowiskowy,
  • kotłownia.

Pierwsze piętro:

  • sypialnia z wejściem na balkon z cudownym widokiem na pasmo Beskidów,
  • gabinet,
  • 2 pokoje,
  • łazienka łączona z pralnią.

Wyposażona we wszystkie dostępne media :

  • woda, kanalizacja znajdują się w działce drogowej ,
  • skrzynka elektryczna oraz gazowa  zabudowana na działce w dolnej jej  granicy,
  • nitka światłowodu biegnie równolegle wzdłuż tylnej linii ogrodzenia.

Działka ogrodzona z trzech stron, do wykonania tylko ogrodzenie frontowe.

Szybki dojazd do Cieszyna około 10 minut.

Szkoła podstawowa, sklepy w odległości około 10 minut jazdy samochodem.

 

Cena do negocjacji!

 

Agent prowadzący ofertę :

Agata  tel. 600 455 643

 

Zapraszam do kontaktu – naprawdę warto! 🙂

 

Nota: Jako pośrednik w obrocie nieruchomościami pobieramy prowizję za wykonanie czynności związanych z zakupem tej nieruchomości. W ramach usługi gwarantujemy bezpieczeństwo przez cały proces zakupu oraz organizujemy wszelkie niezbędne dokumenty potrzebne do zawarcia umowy przeniesienia własności. 

Jesteśmy z Państwem od początku do końca! 

 

Rodzaj nieruchomości

Działka z rozpoczętą budową

Powierzchnia

698 m2

Lokalizacja

Gumna

Rodzaj oferty

Sprzedaż

Technologia budowlana

porotherm 25, styropian

Instalacje

wod-kan,

Liczba łazienek

2

Typ kuchni

z oknem

Wymiary

– boki działki ok.33 mb.,
– dolna i górna granica działki ok.21 mb.,

Ukształtowanie terenu

kształt prostokąta

Przeznaczenie

budowlana

Droga dojazdowa

wewnętrzna nabywana jako udział, główny zjazd z drogi gminnej asfaltowej